1. Preis für CircularTower in Burgdorf

21.11.2022

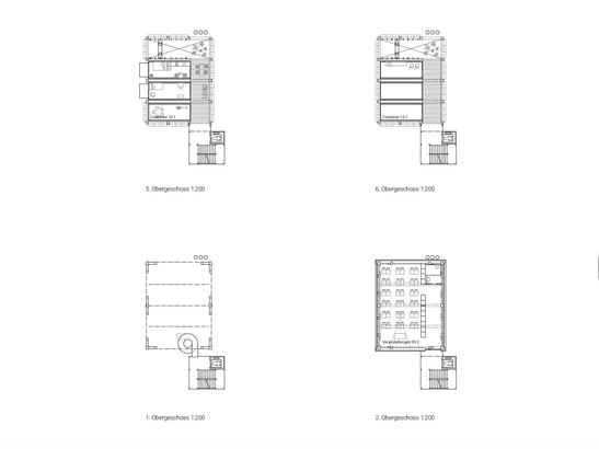
Das Projekt «CircularTower» macht kreislauffähiges Bauen erlebbar. Zur Umsetzung empfohlen wurde das Projekt «Setzkasten» des Bieler Architekturbüros Inhelder Osterwalder Architekten in Zusammenarbeit mit Timbatec Holzbauingenieure.

1. Preis für CircularTower in Burgdorf

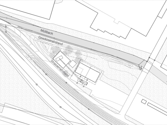
Der zukünftige «CircularTower» wird von Unternehmen, Bildungs- und Forschungsinstitutionen sowie Verbänden gemeinsam mit dem TecLab bespielt und dient als Reallabor und Inspirationsquelle für weitere Projekte im Bereich Kreislaufwirtschaft. Neben Veranstaltungen sollen in und um das Gebäude Forschungs- und Entwicklungsprojekte zu innovativen, kreislauffähigen Materialien, Methoden und Produkten Raum finden.

Im Rahmen des Ideenwettbewerbs wurden Möglichkeiten zur Umsetzung des «CircularTower» generiert. Die Wettbewerbsjury fokussierte bei der Prämierung des Siegerprojekts auf eine nachhaltige Bauweise, den Einsatz erneuerbarer und klimaneutraler Materialien, die Verwendung recycelter Bauteile und die Wiederverwendbarkeit der neuen Bauteile.

Zur Umsetzung empfohlen wurde das Projekt «Setzkasten» des Bieler Architekturbüros Inhelder Osterwalder Architekten in Zusammenarbeit mit Timbatec Holzbauingenieure. Es besticht mit seinem differenzierten architektonischen Ausdruck zirkulären Bauens, dem klugen Einbezug der Öffentlichkeit, der Wandelbarkeit und dem Thema des einfachen Bauens. 

Wir gratulieren Inhelder Osterwalder Architekten zum gelungenen Entwurf und freuen uns auf eine spannende Zusammenarbeit. Weitere Informationen finden Sie auf www.inhelderosterwalder.ch oder auf www.teclab.swiss

Datenschutzhinweis
Diese Webseite nutzt externe Komponenten, welche dazu genutzt werden können, Daten über Ihr Verhalten zu sammeln. Lesen Sie dazu mehr in unseren Datenschutzinformationen.