Surélévation d'un bâtiment scolaire avec la technologie TS3

26.08.2021

L'école Feld à Richterswil sera surélevée et rénovée pour 7,6 millions de francs. Environ quatre millions de francs de cette somme seront investis dans la surélévation de deux étages avec la technologie TS3. Il en résulte une surface supplémentaire de 1'542 mètres carrés pour les salles de classe, les salles de groupe et une salle de musique.

Surélévation d'un bâtiment scolaire avec la technologie TS3

Les deux étages supplémentaires sur l'école Feld résolvent le problème du manque de place. problème de place dans la commune de Richterswil. Sur une surface de 1'542 mètres carrés, plusieurs salles de classe, des salles de groupe et une salle de musique seront créées. Le projet prévoit un total de 300 mètres carrés de surface de réserve qui peuvent être utilisés en cas de besoin. peuvent être intégrés dans le fonctionnement de l'école si nécessaire. Le Conseil municipal tient ainsi compte Conseil municipal tient compte du développement démographique à long terme de Richterswil.

Panneaux grand format avec la technologie TS3
Sur le toit existant de l'école, on a posé une plaque de plâtre. 34 cm d'épaisseur a été monté comme panneau de répartition des charges. Il permet une répartition flexible de l'espace dans la surélévation, indépendamment de la structure sous-jacente, structure porteuse existante. C'est sur cette base que se trouve maintenant la surélévation. La technologie TS3 est utilisée pour est utilisée pour la dalle de répartition des charges, le plancher et le toit de la tour. surélévation. Schilliger Holz AG a fourni des panneaux de contreplaqué prétraités. qui ont été assemblés sur le chantier par scellement des joints avec une résine époxy. ont été assemblés en grands panneaux homogènes de grand format. Selon l'étage, les panneaux ont une épaisseur de entre 280 et 340 millimètres et mesurent jusqu'à 13,5 mètres de long. Au total, 540 mètres de joints TS3 ont été réalisés. Récemment, Saxer Holzbau a terminé les travaux d'élévation terminé.

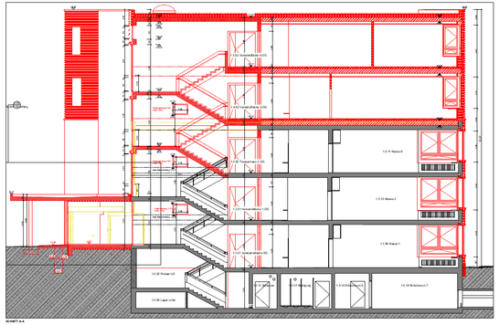
Coupe SH Richterswil
Travaux de redressement

Les panneaux en bois lamellé-croisé Ils ont été prétraités en usine et munis de bandes d'étanchéité et de segments (bandes blanches sur la face latérale). et noires sur les faces). Une fois les panneaux posés, les positionnés, ils ont été reliés entre eux par scellement des joints. Sur la partie Le joint est finalement à peine visible sur la face inférieure du plafond. Les poutres sont ne sont plus nécessaires.

La technologie TS3
La technologie TS3 est le résultat de plus de dix ans de recherche et de développement. développement de Timbatec Holzbauingenieure Schweiz AG en collaboration avec l'ETH Zurich et la Haute école spécialisée bernoise à Bienne. Le procédé relie des éléments de construction en bois par scellement des joints et sans pression sur les faces. En combinaison avec le détail de raccordement spécialement développé pour la tête de l'étai, la technologie TS3 permet la technologie TS3 de réaliser des structures biaxiales de grandes surfaces en bois, porteuses et soutenues par des points, sans les poutres habituelles. des poutres. Ces grandes surfaces sont idéales pour les dalles d'étage, comme dans le cas de la construction de l'école. la surélévation de l'école de Richterswil. Les installations peuvent être réalisées sans obstacles. et peuvent être adaptées en permanence aux exigences changeantes. Les plafonds ne nécessitent pas de murs porteurs. Cela permet une répartition flexible des pièces et une réaffectation facile. des salles.

Plan TS3

Prestation Timbatec
Timbatec a conseillé l'entrepreneur général Allreal dès la phase de concours, puis a puis accompagné le projet en tant qu'ingénieur en construction bois. Nos prestations comprenaient en particulier l'étude de projet et la planification détaillée, y compris la planification des travaux, l'estimation des coûts, l'appel d'offres et enfin le suivi de la réalisation. Réalisation.

Protection des données
Ce site web utilise des composants externes qui peuvent être utilisés pour collecter des données sur votre comportement. Pour en savoir plus, consultez nos informations sur la protection des données.