«HOFWIS» nominé pour «Les meilleurs 2024»

15.11.2024

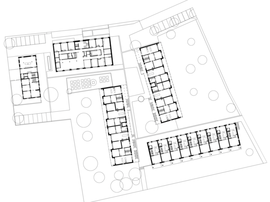
La «Fondation Pro Elsau» a construit un lotissement mixte pour personnes âgées comprenant neuf maisons individuelles mitoyennes, 31 appartements, un garage souterrain et des places de stationnement pour visiteurs. L'offre est complétée par des programmes culturels et de santé qui créent une expérience de vie unique au sein du HOFWIS.

«HOFWIS» nominé pour «Les meilleurs 2024»

Prix d'architecture et de design «Les meilleurs 2024» décerné par Hochparterre

Le centre culturel et de santé HOFWIS, construit par la fondation Elsau, a été nominé dans la catégorie architecture pour le prix du public de «Les meilleurs 2024». Nous sommes très heureux que cette architecture en bois à la mise en scène extrêmement réussie ait réussi à figurer sur la liste longue sélectionnée. Toutes nos félicitations à tous les participants à la construction.

Données clés du projet

  • Immeuble d'habitation HOFWIS avec centre de santé et de culture, 8152 Elsau, ZH
  • https://www.hofwis.ch
  • Maître d'ouvrage : Fondation Pro Elsau
  • Architecture : BDE Architekten GmbH, Winterthur

Le projet comprend 2 immeubles collectifs, 9 maisons individuelles en rangée, 1 centre de santé et une bibliothèque avec salle polyvalente. L'intégration dans l'environnement rural a été parfaitement réussie grâce aux coursives, aux toits en pente ainsi qu'aux façades en bois. Les quatre nouveaux bâtiments ont été entièrement construits en bois à partir de la dalle de fondation. L'offre de location a été largement utilisée. Toutes les unités d'habitation sont louées.

Architecture | Construction durable | Énergies renouvelables

L'architecture du lotissement HOFWIS s'intègre dans la situation centrale du village en reprenant des éléments de la ferme existante. Le centre de santé réinterprète une grange seigneuriale avec un socle maçonné et des façades en bois, ce qui souligne son importance pour la communauté. Construits de manière durable, les nouveaux bâtiments combinent le bois avec un minimum de béton et d'acier afin de préserver les ressources et de garantir une efficacité à long terme. Une grande installation photovoltaïque couvre les besoins propres, alimente des pompes à chaleur, recharge des voitures électriques et stocke le surplus d'électricité. Les bâtiments répondent aux exigences de la voie d'efficacité énergétique SIA 2040.

Images ©Jusuf Supuk


Award Night au Museum für Gestaltung de Zurich, 3.12.2024

Le 3 décembre, les gagnants seront récompensés lors de la Award-Night au Museum für Gestaltung de Zurich.

Organisateur

  • Hochparterre AG, maison d'édition pour l'architecture, la planification et le design - LINK
  • Société Müssig AG, Amriswil - LINK

#architecture #architecture de paysage #design

Protection des données
Ce site web utilise des composants externes qui peuvent être utilisés pour collecter des données sur votre comportement. Pour en savoir plus, consultez nos informations sur la protection des données.