frFrançais


Le projet
Le lotissement de Wädenswil, qui comprend 34 unités d'habitation, a été construit en béton armé. La façade a été réalisée en bois avec un coffrage vertical, imprégné sous pression et est recouverte d'une peinture. Les surfaces de la façade se situent à différents niveaux. Horizontalement, des bandes de tablier sont placées chaque demi-étage et font le tour complet du bâtiment. L'intégration de ces tabliers dans l'appui de fenêtre et les finitions de l'allège, avec des différences partielles de hauteur et de profondeur, donne lieu à des géométries complexes qui devaient être formées. En raison du coffrage vertical, la sous-construction devait être réalisée horizontalement. Afin de ne pas devoir réaliser une double sous-construction pour la ventilation arrière, la sous-construction a été formée avec des lattes décalées, afin que la ventilation arrière soit encore garantie.
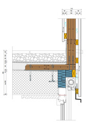
Le mode de construction
Une grille croisée est posée sur le mur extérieur. Pour ce faire, le premier lattage doit être rectifié afin d'absorber les tolérances de la construction massive. Pour réduire les ponts thermiques, la deuxième grille, au lieu d'être horizontale, est désormais verticale. Le papier brise-vent protège l'isolation contre le refroidissement dû à l'influence du vent. Le lattage de ventilation et le coffrage de façade sont montés au-dessus.
Le défi
Les fixations des allèges, qui ne pouvaient pas être fixées sur le béton, ont dû être pontées et ancrées en arrière avec une épaisse plaque à trois couches. Pour la façade, les formations précises des tabliers, avec des pièces de tôle à la géométrie complexe, constituent un défi.
Données de construction
- Revêtement de façade env. 4'500 m2
Coûts de construction
- CFC 214 : 1'968'306.francs suisses
Prestations de Timbatec
- SIA phase 41 Appel d'offres et comparaison des offres
- SIA phase 51 Projet d'exécution
- Planification de la façade
Architecte
Noldin Immobilien AG 8004 Zürich
Maître d'ouvrage
Noldin Immobilien AG 8004 Zürich
Ingénieur en construction bois
Timbatec Holzbauingenieure Schweiz AG 8005 Zürich
Construction en bois
Kälin Holz Technik AG 8840 Trachslau
Ingénieur civil
Urech Bärtschi Maurer AG 8037 Zürich
Physique du bâtiment
FEAG Facility Engineering AG 8305 Dietlikon
Photographie
© René. Dürr, 8046 Zurich